Проект восстановления производственного здания

Проект восстановления производственного здания

Выполнение проектных работ по восстановлению после пожара производственно-складского корпуса №451

Особенности проекта!

Проект восстановления производственного здания

Задачи: Разработать проектно-сметную документацию по восстановлению здания производственно-складского назначения

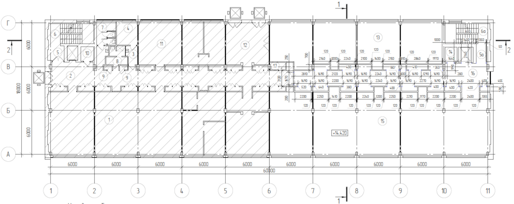
Сложности: Здание имеет каркасную конструктивную систему с поперечным расположением ригелей с ячейкой колонн 6 х 6 метров.

Решения: В ходе проектирования разработан проект восстановления здания, в том числе схемы усиления поврежденных пожаром конструкций

Объект:Нежилое здание
Срок работ:25 дней
Заказать подобный проект

Заказать обратный звонок

оставьте завку и мы перезвоним вам в ближайшее время